




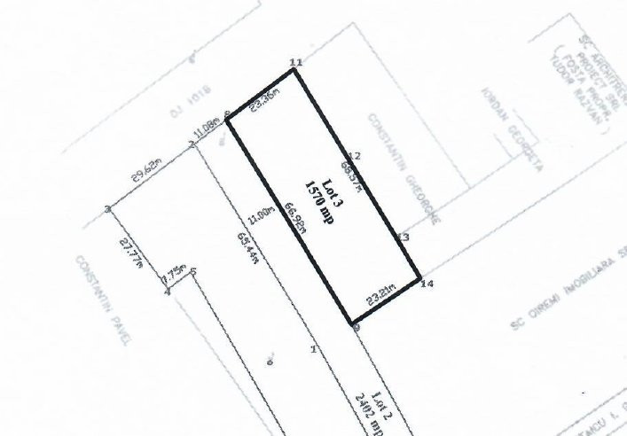
În mijlocul localității Ciofliceni, chiar la strada principală, colț cu un drum pietruit lat de 11m, este disponibil la vânzare un lot de teren de 1.570mp. Lotul are o deschidere de 23m la drumul principal și de 66m la drumul pietruit.
Situarea terenului pe strada principală din Ciofliceni, în apropiere de Școala Internațională Class și de frumoasa amenajare a Mănăstirii Părinților Carmelitani Desculți, între DN1 și Autostrada București-Ploiești, face ca acest teren să fie potrivit pentru o dezvoltare comercială sau o investiție bună pentru viitor.
Având deschidere la strada principală, terenul are toate utilitățile prezente în comună - gaz, curent și apă - mai puțin canalizarea, care încă nu este trasă.
Pentru mai multe detalii, vă rog, să mă contactați!